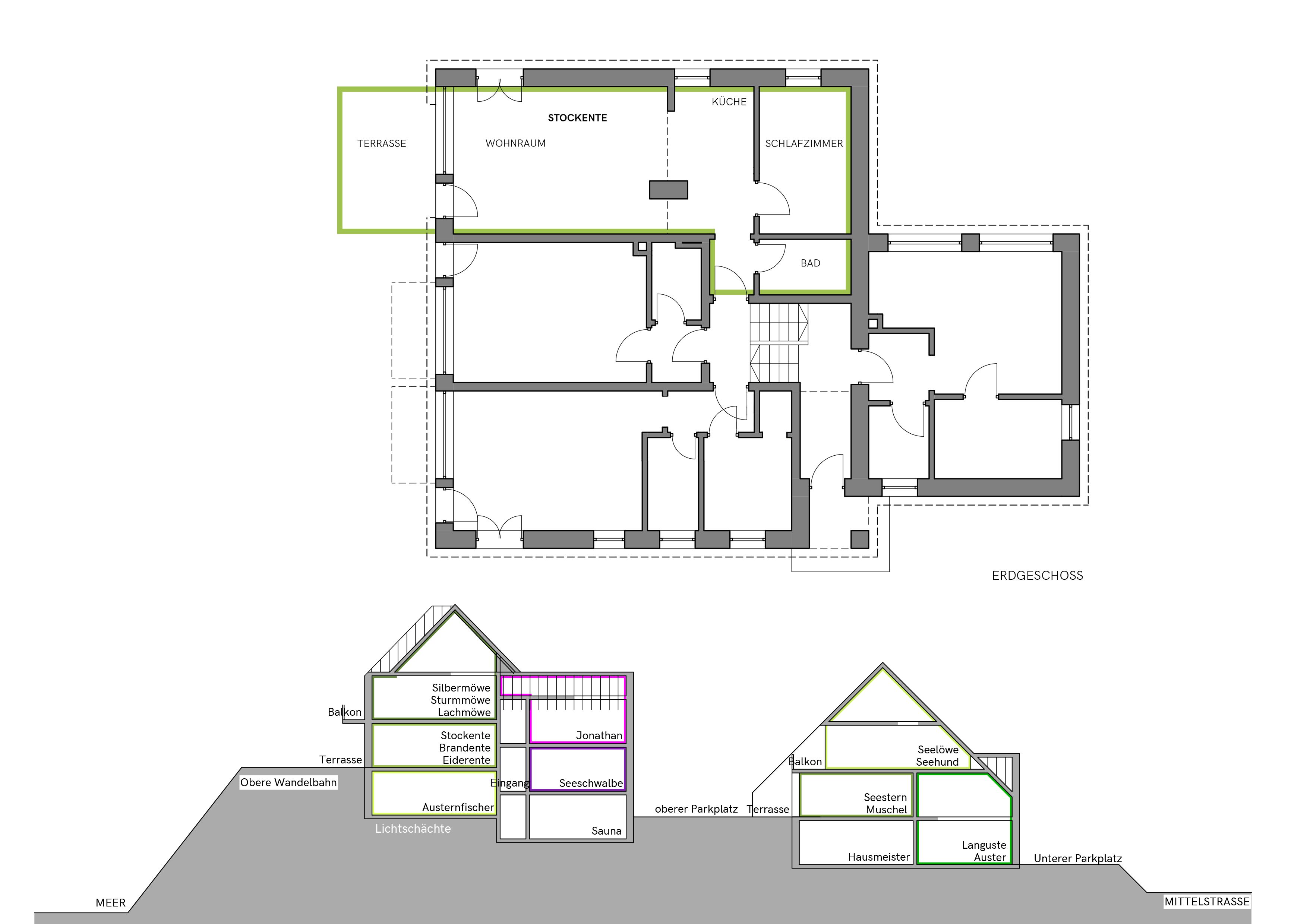
Stockente
Bis 4 Personen
- ca. 63 m², 1.OG
- Süd-Terrasse mit Meerblick und Strandkorb
- Schlafzimmer (Doppelbett)
- Wohnzimmer (Schlafcouch oder Babybett möglich)
- Einbauküche mit Spülmaschine
- Backofen mit Mikrowellenfunktion
- Duschbad (Fön vorhanden)
Hauptsaison: 190,- €
Zwischensaison: 145,- €
Nebensaison: 100,- €









